產品列表
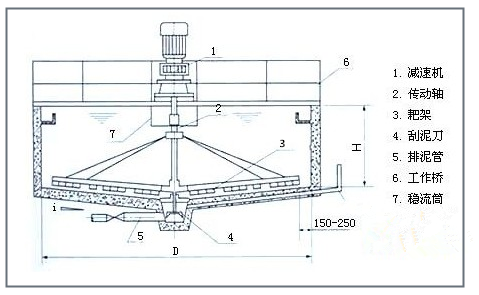
ZCG型中心傳動刮泥機

概述
該係列刮泥機結構簡單,整台刮泥機的載荷都作用在工作橋架的中心,由中心驅動機構帶動刮集裝置旋轉,頂向刮板將沉澱池底的汙泥刮集到中心集泥槽中,靠靜水壓力從汙泥槽中排出。該機用於池徑較小的輻流式沉澱池。
性能特點
1、結構簡單,操作方便、刮泥效率高。
2、設置電氣過載保護裝置。
3、可選擇使用提升裝置,分為手動與電動。
技術參數
該係列刮泥機結構簡單,整台刮泥機的載荷都作用在工作橋架的中心,由中心驅動機構帶動刮集裝置旋轉,頂向刮板將沉澱池底的汙泥刮集到中心集泥槽中,靠靜水壓力從汙泥槽中排出。該機用於池徑較小的輻流式沉澱池。
性能特點
1、結構簡單,操作方便、刮泥效率高。
2、設置電氣過載保護裝置。
3、可選擇使用提升裝置,分為手動與電動。
技術參數
| 型號 |
池徑D (m) |
池深 (m) |
周邊線速度 (m/min) |
驅動功率 (KW) |
鋼結構重量 (kg) |
| ZCG3 | 3 | 3 | 1~2 | 0.37 | 2500 |
| ZCG4 | 4 | 3.5 | 1~2 | 0.37 | 3200 |
| ZCG5 | 5 | 4 | 1~2 | 0.37 | 3800 |
| ZCG6 | 6 | 4 | 1~2 | 0.37 | 4000 |
| ZCG8 | 8 | 4.5 | 1~2 | 0.55 | 5000 |
| ZCG10 | 10 | 4.5 | 1.5~2.5 | 0.55 | 6000 |
| ZCG12 | 12 | 5 | 1.5~2.5 | 0.55 | 6800 |
| ZCG14 | 14 | 5 | 2~3 | 0.75 | 7600 |
| ZCG16 | 16 | 5 | 2~3 | 0.75 | 8300 |
| ZCG18 | 18 | 5 | 2~3 | 0.75 | 9100 |
外形示意圖

控製係統為用戶選用或自備,在現場接入電源即可使用。
現場電控箱上采用就地啟停控製按鈕,現場電控箱上設有設備的啟動、停機按鈕及啟動、停機、事故信號燈。為節省能耗,所有信號燈都采用節能型,在電控箱內設有電動機保護器。控製櫃可設PLC遠程控製接口。本電控箱采用碳鋼防腐或不鏽鋼外殼,室外防雨。
訂貨所需參數
1、刮泥機直徑 2、材質要求
上一篇:網板式階梯格柵除汙機
下一篇:CG垂架式中心傳動刮泥機



蘇公網安備32028202232131號